Everton Hills

Explore

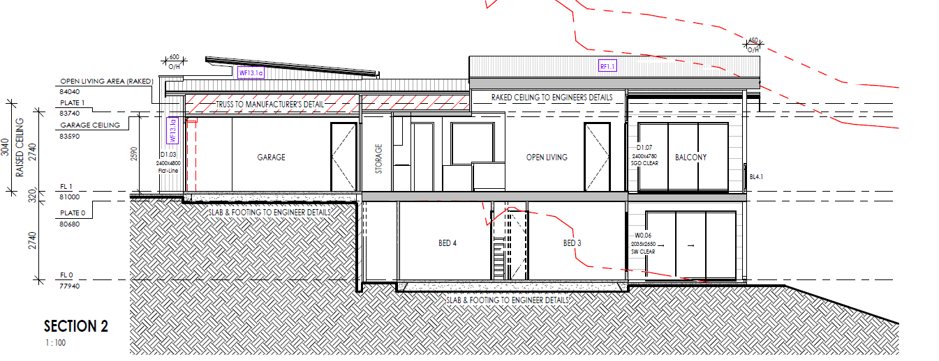
See our other developments.

Gold Package Inclusions

Stage 1 – Concept

  • Site consultation with a building designer and measurement (then phone and email liaison included)
  • Detailed site and existing floor plans
  • Concept plans with 2 x complimentary revisions
  • Over land flow report and flood wise report
  • Predetermined flood heights if available from Council
  • A determination if a hydraulic engineer would be required
  • Character and Zoning Overlay
  • Council Stormwater infrastructure on or adjacent to the site
  • Council Sewerage infrastructure on or adjacent to the site

Stage 2 – Design Development + Finalised Plans for Approval

  • Detailed elevations and working drawings  with 2 x  complimentary revisions
  • Complete set of working drawings emailed to the client for approval
  • Recommendation for a builder (as required)

This will give everything that you need to begin the engineering process. A engineering firm can be recommended separately.

Once engineering is completed externally, this is everything you need to give to your private certifier and builder to begin your house raise construction.

Liaison with a town planner will acquire an additional charge of $500

Platinum Package Inclusions

Stage 1 – Concept

  • Site consultation with a building design and site measure
  • Detailed site and existing floor plans
  • Concept plans with 3 x complimentary revisions
  • Proposed area schedule
  • 3 x 3D external colour render perspectives + 1 x concept review meeting
  • Over land flow report and flood wise report
  • Predetermined flood heights if available from Council
  • A determination if a hydraulic engineer would be required
  • Character and Zoning Overlay
  • Council Stormwater infrastructure on or adjacent to the site
  • Council Sewerage infrastructure on or adjacent to the site
  • Builder  budget review consultation (Refer to Terms & Conditions section 6.1)

Stage 2 – Working Drawings + Collaboration

  • Detailed elevations & working drawings with 3 x complimentary revisions
  • Roof plans and drainage outlines
  • Detail section drawings
  • Window and door schedule
  • General site notes
  • Collaboration with structural engineers, town planners and certifiers to save you time, progress your project to get ready for the build

Stage 3 – Finalised Plans for Approval

  • Complete set of construction drawings emailed to the client for approval
  • 1  x complimentary amendment to BA plans

Gold Package Inclusions

Stage 1 – Concept

  • Site consultation with a building designer and measurement (then phone and email liaison included)
  • Detailed site and existing floor plans
  • Concept plans with 2 x complimentary revisions
  • ​Over land flow report and flood wise report
  • Predetermined flood heights if available from Council
  • A determination if a hydraulic engineer would be required
  • Character and Zoning Overlay
  • Council Stormwater infrastructure on or adjacent to the site
  • Council Sewerage infrastructure on or adjacent to the site

Stage 2 – Design Development + Finalised Plans for Approval

  • ​Detailed elevations and working drawings  with 2 x  complimentary revisions
  • ​Complete set of working drawings emailed to the client for approval
  • Recommendation for a builder (as required)

This will give everything that you need to begin the engineering process. A engineering firm can be recommended separately.

Once engineering is completed externally, this is everything you need to give to your private certifier and builder to begin your house raise construction.

Liaison with a town planner will acquire an additional charge of $500

Platinum Package

Stage 1 – Concept

  • Site consultation with a building design and site measure
  • Detailed site and existing floor plans
  • Concept plans with 3 x complimentary revisions
  • Proposed area schedule
  • 3 x 3D external colour render perspectives + 1 x concept review meeting
  • Over land flow report and flood wise report
  • Predetermined flood heights if available from Council
  • A determination if a hydraulic engineer would be required
  • Character and Zoning Overlay
  • Council Stormwater infrastructure on or adjacent to the site
  • Council Sewerage infrastructure on or adjacent to the site
  • Builder  budget review consultation (Refer to Terms & Conditions section 6.1)

Stage 2 – Working Drawings + Collaboration

  • Detailed elevations & working drawings with 3 x complimentary revisions
  • Roof plans and drainage outlines
  • Detail section drawings
  • Window and door schedule
  • General site notes
  • Collaboration with structural engineers, town planners and certifiers to save you time, progress your project to get ready for the build

Stage 3 – Finalised Plans for Approval

  • Complete set of construction drawings emailed to the client for approval
  • 1  x complimentary amendment to BA plans

Gold Package

Stage 1 – Concept

  • Site consultation with a building designer and measurement (then phone and email liaison included)
  • Detailed site and existing floor plans
  • Concept plans with 2 x complimentary revisions
  • ​Over land flow report and flood wise report
  • Predetermined flood heights if available from Council
  • A determination if a hydraulic engineer would be required
  • Character and Zoning Overlay
  • Council Stormwater infrastructure on or adjacent to the site
  • Council Sewerage infrastructure on or adjacent to the site

Stage 2 – Design Development + Finalised Plans for Approval

  • ​Detailed elevations and working drawings  with 2 x  complimentary revisions
  • ​Complete set of working drawings emailed to the client for approval
  • Recommendation for a builder (as required)

This will give everything that you need to begin the engineering process. A engineering firm can be recommended separately.

Once engineering is completed externally, this is everything you need to give to your private certifier and builder to begin your house raise construction.

Liaison with a town planner will acquire an additional charge of $500

Gold Package Inclusions

Stage 1 – Concept

  • Site consultation with a building designer and measurement (then phone and email liaison included)
  • Detailed site and existing floor plans
  • Concept plans with 2 x complimentary revisions
  • Over land flow report and flood wise report
  • Predetermined flood heights if available from Council
  • A determination if a hydraulic engineer would be required
  • Character and Zoning Overlay
  • Council Stormwater infrastructure on or adjacent to the site
  • Council Sewerage infrastructure on or adjacent to the site

Stage 2 – Design Development + Finalised Plans for Approval

  • Detailed elevations and working drawings  with 2 x  complimentary revisions
  • Complete set of working drawings emailed to the client for approval
  • Recommendation for a builder (as required)

This will give everything that you need to begin the engineering process. A engineering firm can be recommended separately.

Once engineering is completed externally, this is everything you need to give to your private certifier and builder to begin your house raise construction.

Liaison with a town planner will acquire an additional charge of $500